Information

LES ETUDES D'EXECUTION EN CVC PLOMBERIE

1. Définition des plans EXE

Les plans EXE CVC-Plomberie sont les plans techniques détaillés produits à partir des études d’exécution.
Ils ont pour but de :

  • Montrer précisément le tracé, les diamètres, altimétries et repérages des réseaux.

  • Assurer la coordination avec les autres corps d’état (GO, électricité, SSI, etc.).

  • Guider le montage et la pose des équipements sur le chantier.

Ces plans remplacent les plans de principe du dossier de conception (PRO ou DCE) et intègrent toutes les décisions techniques validées (réservations, percements, cotes altimétriques, etc.).


đź§± 2. Types de plans EXE en CVC-Plomberie

🔹 A. Plans CVC (Chauffage, Ventilation, Climatisation)

  1. Plans d’implantation des réseaux aérauliques

    • Tracé complet des gaines de ventilation, désenfumage, climatisation.

    • Indication des sections, vitesses d’air, repérages et cotes.

    • Implantation des bouches, grilles, diffuseurs, registres, clapets coupe-feu.

    • Détails de raccordement aux CTA, ventilateurs, échangeurs.

  2. Plans des réseaux hydrauliques

    • Tracé des réseaux de chauffage, eau glacée, condenseur, etc.

    • Diamètres des canalisations, vannes, accessoires, collecteurs.

    • Position des circulateurs, purgeurs, vases d’expansion, régulation.

    • Sens de circulation et repérage des circuits.

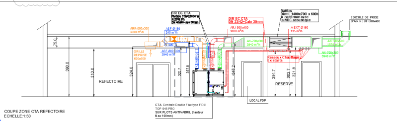
  3. Plans de locaux techniques CVC

    • Chaufferie, local CTA, sous-station, centrale de traitement d’air.

    • Disposition précise des appareils et des canalisations.

    • Détails de raccordement, supports et encombrements.

  4. Plans de réservations CVC

    • Percements à prévoir dans les dalles, murs et planchers techniques.

    • Coordonnés avec le gros œuvre et les autres lots techniques.


🔹 B. Plans Plomberie / Sanitaire

  1. Plans des réseaux EF/EC/ECS

    • Distribution d’eau froide, eau chaude, bouclage ECS.

    • Diamètres, repérages, points de puisage.

    • Position des vannes, disconnecteurs, compteurs, ballons.

  2. Plans d’évacuation EU/EV/EP

    • Réseaux horizontaux et verticaux (chutes, collecteurs).

    • Pentes, diamètres, ventilations primaires et secondaires.

    • Évacuation des appareils sanitaires et des équipements techniques.

  3. Plans d’appareillage sanitaire

    • Positionnement précis des appareils (lavabos, WC, douches, etc.).

    • Raccordements en alimentation et évacuation.

    • Détails d’installation, réservations, hauteurs de pose.

  4. Plans isométriques (ou schémas de colonne)

    • Représentation tridimensionnelle simplifiée des colonnes et raccordements.

    • Très utiles pour les logements, hôtels, bâtiments à étages multiples.


đź§° 3. Contenu d’un plan EXE complet

Chaque plan d’exécution doit comporter les éléments suivants :

 

ÉlémentDescriptionTitre et légendeType de plan, niveau, orientation, échelle, date, versionRepérage des réseauxPar code couleur et symbole normalisé (EF, EC, EU, EV, etc.)Cotes et altimétriesCotes horizontales et verticales (hauteur sous plafond, niveau plancher fini)Diamètres / sectionsMention de tous les diamètres de conduites et gainesSymboles d’équipementsÉmetteurs, terminaux, vannes, appareils, bouches, etc.Sens de circulationIndiqué par des flèches sur les réseaux hydrauliques et aérauliquesRepères techniquesNumérotation des circuits, équipements, points de mesureNotes et référencesLiens vers les schémas ou notes de calcul correspondantesCoordination 3DCalage spatial vis-à-vis des autres corps d’état (structure, élec, SSI)

 


📊 4. Livrables graphiques typiques

Un dossier EXE CVC-Plomberie comprend généralement :

 

DocumentFormatDescriptionPlan CVC – Chauffage par niveauDWG/PDFTracé complet avec altimétriesPlan Ventilation / ClimatisationDWG/PDFGaines, bouches, CTAPlan Locaux techniquesDWG/PDFImplantation précise des appareilsPlan Plomberie – EF/EC/EUDWG/PDFRéseaux d’eau et évacuationsSchéma de principe CVCPDFSchéma fonctionnel et hydrauliqueIsométrique PlomberiePDFSchéma 3D des colonnesPlan de réservationsDWG/PDFPercements et trémiesNomenclature / LégendeXLS/PDFListe des équipements et symboles

 


đź§© 5. Logiciels couramment utilisés

  • AutoCAD (2D traditionnelle)

  • Revit / BIM (maquette numérique 3D coordonnée)

  • Plancal Nova, Trimble Nova, Stabicad, Caneco BIM, CYPE pour le dimensionnement intégré

  • Navisworks pour la synthèse et détection de collisions (clashs).


đź§ľ 6. Finalité des plans EXE

Les plans EXE sont :

  • la référence du chantier pour la pose des réseaux,

  • la base du contrôle et du visa du maître d’œuvre,

  • et la source pour établir les plans DOE ("tel que construit") en fin de projet.

Découvrez nos dernières réalisations

Explorez notre collection de projets visuels et créatifs. Chaque pièce reflète notre souci du détail et notre engagement à obtenir des résultats qui dépassent les attentes.

Nouvelle collection

Recentes études d'exécution en cvc plomberie , realisée pour le compte d'un de nos clients à paris.